Обяви За нас Контакти
Продава 2-СТАЕН
област София, гр. Костинброд
125 000 €
244 478.75 лв.

(1 786 €, 3 493.11 лв./m2)
Цената е с включено ДДС
История на цената
Публикувана в 13:51 на 6 януари, 2026 год.
Обявата е посетена 318 пъти.
Площ:
70 m2
Етаж:
4-ти от 7
Строителство:
Тухла, Ще бъде въведен в експлоатация 2027 г.

Описание на имота:


Описание
СРЕДЕН ЕТАЖ ! ИЗЦЯЛО ИЗТОК ! НЕСКРИВАЕМА ГЛЕДКА !

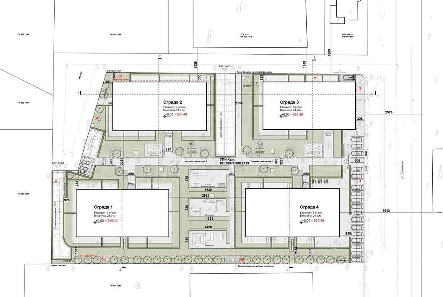
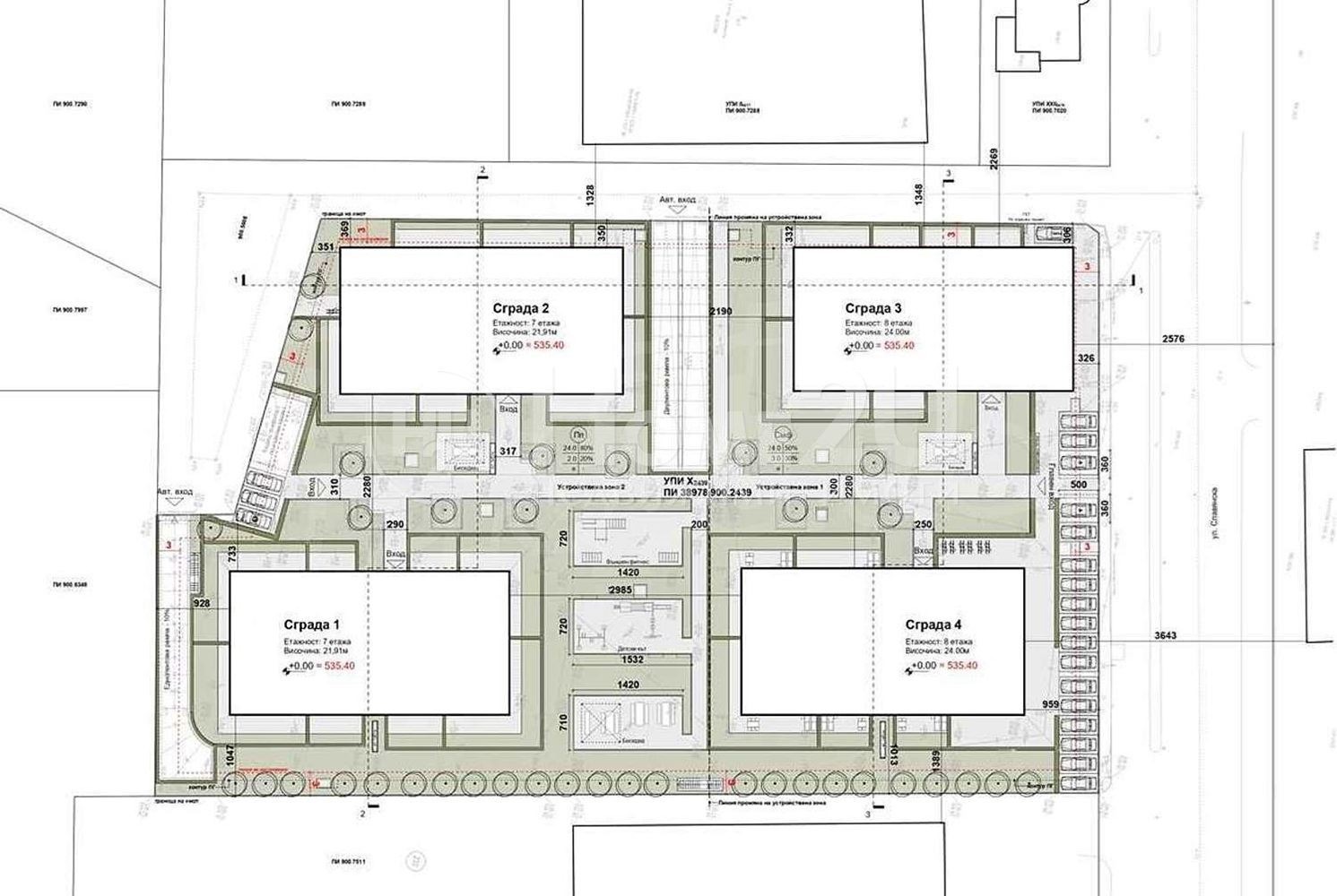
Двустайно жилище в модерна нова сграда с панорамна гледка- Сграда 1.

Предлагаме функционален двустаен апартамент, разположен на четвърти етаж от седем в нова, модерна жилищна сграда, част от престижен затворен комплекс.

Сградата е в напреднал етап на строителство, зидариите напредват и се изпълняват на последния седми етаж, започва работа по ел. инсталациите.

Локация и предимства на комплекса: Комплексът предлага спокойна и зелена среда за живеене, с просторен вътрешен двор, богато озеленяване, детски площадки и зони за отдих. Сигурността на жителите е осигурена чрез контролиран достъп и видеонаблюдение. Отоплението е на газ, с възможност за допълнителна климатизация. Характеристики на сградата Сградата впечатлява със съвременна архитектура, луксозно изпълнени общи части и асансьор. Използвани са висококачествени материали, гарантиращи дълготрайност, енергийна ефективност и отлична звукоизолация.

Характеристики на имота:

Апартаментът се намира на висок етаж и е с изложение изток.
Жилището е функционално разпределено и включва: просторна дневна с кухня и трапезария, спалня, баня с тоалетна, складово помещение / килер, коридор и тераса.
Допълнителна информация Към апартамента има възможност за покупка на подземно паркомясто, което се предлага отделно.

Това жилище е отличен избор както за собствен дом, така и за инвестиция с цел отдаване под наем, съчетава модерен дизайн, комфорт и сигурност в динамично развиващ се район.

За повече информация и огледи се обадете сега и цитирайте код: 138603
Особености
Тухла
Асансьор
Видео наблюдение
Контрол на достъпа
В затворен комплекс
За контакт:
0882790127
Агенция:
ХОУМ ТУ Ю БЪЛГАРИЯ
0875363330
ХОУМ ТУ Ю БЪЛГАРИЯ logo
Медал за прослужено време
В imot.bg от 2011 г.
home2u3.imot.bg
Адрес:
област София, гр. София, бул. Черни връх 1, ет. 2
http://www.home2u.bg
ИЗПРАТИ ЗАПИТВАНЕ
ИЗПРАТИ ЗАПИТВАНЕТО

Продава 2-СТАЕН
област София, гр. Костинброд
Обява: 1b176770027101580

125 000 €
244 478.75 лв.
История на цената
(1 786 €, 3 493.11 лв./m2)

Цената е с включено ДДС
ЗАПАЗИ ОБЯВАТА

Местоположение: област София, гр. Костинброд